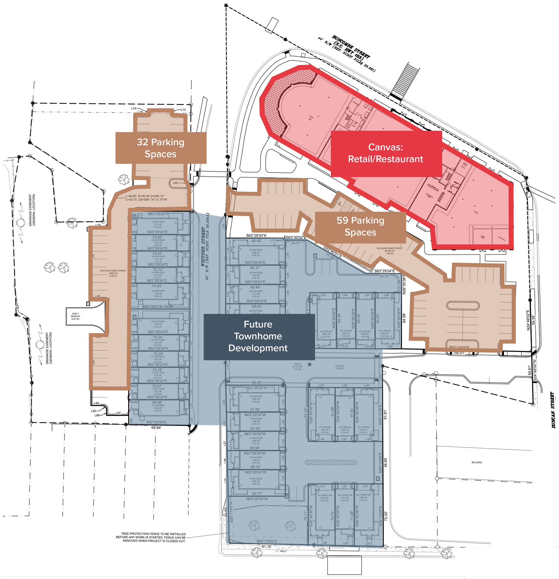
Greenville’s downtown has long been one of the Upstate’s most popular destinations for shopping, dining and entertainment, and over the past few years, has amassed a multitude of accolades and awards from national publications.
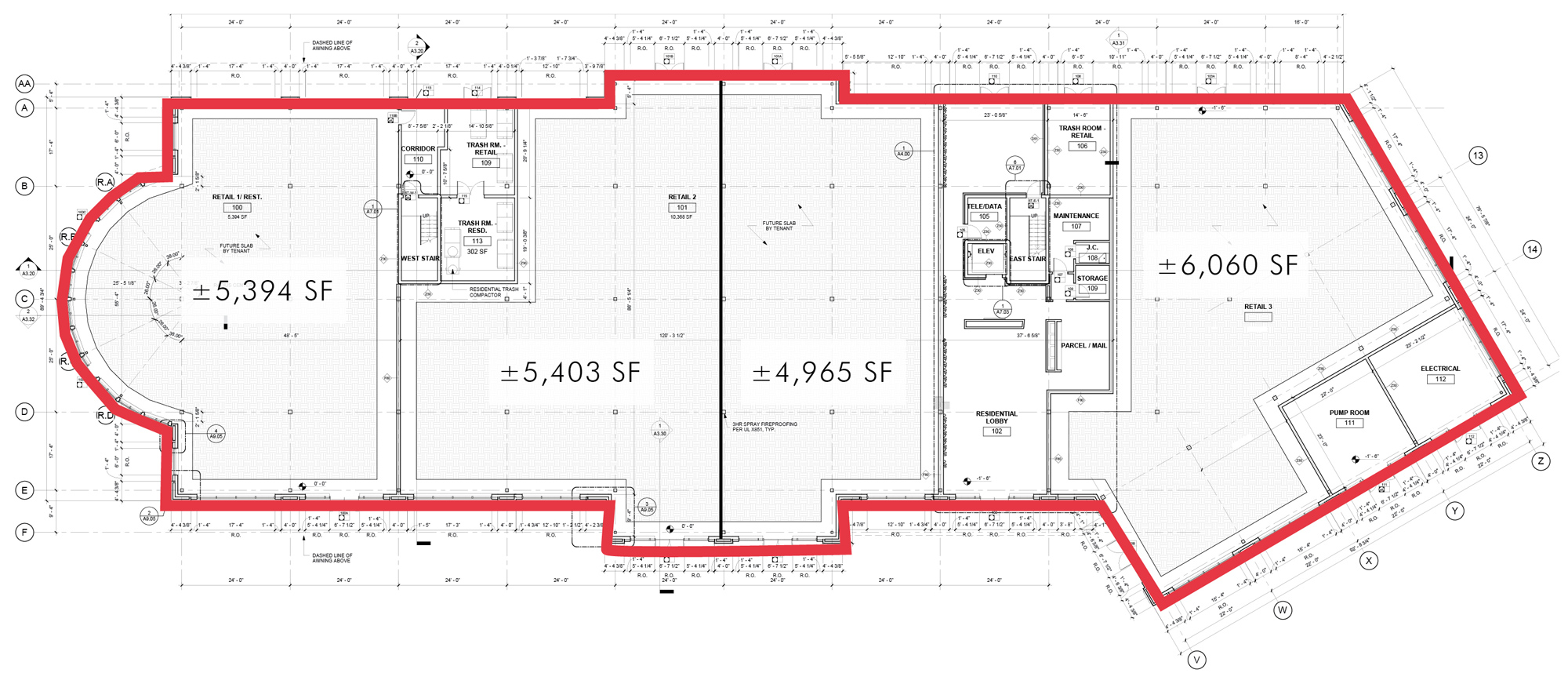
Located just two blocks from Greenville’s North Main Street and along two of the city’s most important thoroughfares, the 21,805 sq. ft of ground-floor commercial space is well-positioned to serve the residents of Canvas Lofts, the North Main Street business district, and the surrounding Hampton Pinckney neighborhood.
Retail space will feature 20’ ceilings, storefront glass, and architectural details that will position the building as an ideal location for restaurateurs, creative office users, and neighborhood-serving retailers.



SHELBY L. DODSON, LEED AP
First Vice President
T +1 864 527 6022
shelby.dodson@cbre.com
CHARLES GOUCH, CCIM, SIOR
Senior Vice President
T +1 864 527 6035
charles.gouch@cbre.com
BRIAN SCURLOCK
Senior Associate
T +1 864 527 6071
brian.scurlock@cbre.com
Interested in viewing other properties? Visit CBRE’s Global Listings to explore additional availabilities
©2022 CBRE, Inc. All rights reserved. This information has been obtained from sources believed reliable, but has not been verified for accuracy or completeness. You should conduct a careful, independent investigation of the property and verify all information. Any reliance on this information is solely at your own risk. CBRE and the CBRE logo are service marks of CBRE, Inc. All other marks displayed on this document are the property of their respective owners, and the use of such logos does not imply any affiliation with or endorsement of CBRE. Photos herein are the property of their respective owners. Use of these images without the express written consent of the owner is prohibited.